Popis
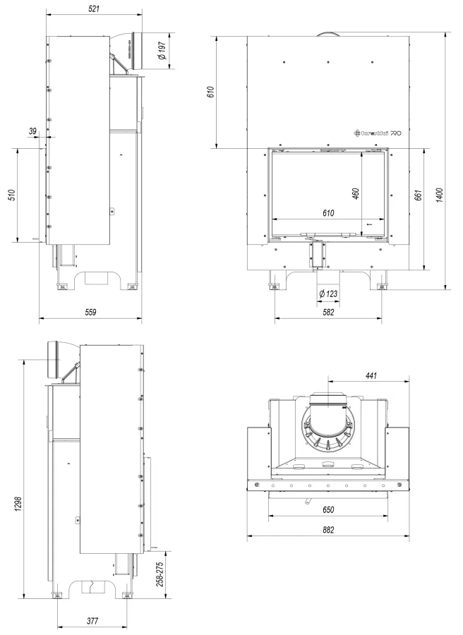
Výnimočný dôraz na detail, vynikajúce technické parametre a precíznosť spracovania charakterizujú radu krbových vložiek MB. MAXIMÁLNE VYUŽITIE ENERGIE Korpus a dvierka krbovej vložky vyrobené z vysokokvalitnej žiaruvzdornej ocele. Účinné spaľovanie, vyššia teplota v spaľovacej komore a dlhšia akumulácia teploty v ohnisku vďaka obloženiu z Termotec. Zvýšený sopúch a priečne umiestnené rúrky na výmenu tepla efektívnejšie odovzdávanie tepla. Nižšia teplota spalín zvyšuje účinnosť. Stabilné a odolné dvierka z uzavretého profilu s tesnením, ktoré zaručuje priľnavosť a dlhú životnosť. Doháranie nespálených častíc vďaka deflektoru, ktorý predĺžuje dráhu spalín, čím sa zvyšuje využitie energie a minimalizujú emisie. Štandardnou výbabou je príprava na externý prívod vzduchu s priemerom 125 mm. Regulácia výkonu jediným tiahlom, čo eliminuje nesprávne používanie. Trojitý prívod vzduchu do spaľovacej komory – primárny je privádzaný do spaľovacej komory priamo, sekundárny cez otvory na zadnej stene a terciálny má za úlohu oplach skla. BEZPEČNOSŤ NA NAJVYŠŠEJ ÚROVNI Dokonalá tesnosť vďaka pevným zvarom. Oceľové elementy rezané laserovo a ohýbané na ohýbačkách CNC. Žiaruvzdorné dvierka s keramickým sklom odolným voči teplotám až 660°C s certifikátom kvality a bezpečnosti. EKOLOGICKÉ SPAĽOVANIE Krbová vložka spĺňa kritéria Ekoprojektu a normy BImSchV 2, ktoré stanovujú maximálne emisie CO. JEDNODUCHÁ OBSLUHA Bezroštová krbová vložka – popol dohára v spaľovacej komore, čo v praxi zmanená, že drevo zhorí na jemný popol a je tak využité na maximum. Vzduchová clona medzi sklom a spaľovacou komorou udržuje sklo dlhšie čisté a odovzdáva tak do ppriestoru viac tepla. Možnosť ustavenia krbovej vložky aj na prípadných nerovnostiach vďaka nastaviteľným nožkám. Nastaviteľný, dvojdielny vývod spalín s možnosťou otáčania o 360°. LIFT-UP systém otvárania dvierok – výsuvné otváranie pre jednoduchšie prikladanie dreva a možnosť bočného otvárania pre pohodlné čistenie skla. MODERNÝ DIZAJN Dekoratívne sklo typu glass s čiernym okrajom, ktoré opticky zväčšuje pohľad na oheň a krbová vložka je tak elegantná a moderná. Minimálna požadovaná veľkosť mriežky na výdaj vzduchu (cm2): ≥900 Minimálna požadovaná veľkosť mriežky na príjem vzduchu (cm2): ≥700 Hmotnosť 283 kg Nominálny výkon (kW)13.0 Výkonný rozsah (kW)6.0 – 16.0 Palivo Drevo Materiál Oceľ Dvojité spaľovanie Áno Externý prívod vzduchu Áno Popolník Nie Účinnosť (%)81 Emisie CO (13% O2 VOL. %)0,09 Max. dĺžka polien (mm)500 Dymovod Horný, nastaviteľný Priemer dymovodu (mm)200 Teplota spalín (°C)235 Kolekcia MB Výrobca KRATKI Otváranie dvierok Výsuvné Presklenie Rovné









Recenze
Zatím zde nejsou žádné recenze.