Popis
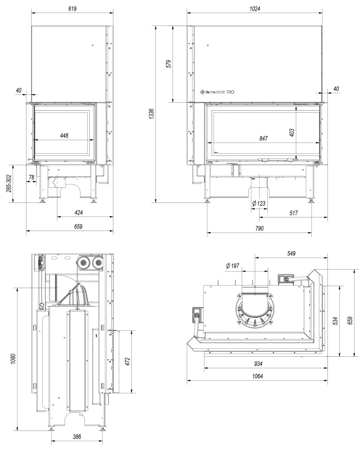
Moderná krbová vložka pre každého, komu záleží na jednoduchosti používania krbu. Veľké rohové širokouhlé presklenie, šesťuholníková spaľovacia komora a veľmi dobré spaľovacie hodnoty sú najväčšími prednosťami tohto modelu. MAXIMÁLNE VYUŽITIE ENERGIE Účinné spaľovanie, vyššia teplota v spaľovacej komore a dlhšia akumulácia teploty v ohnisku vďaka obloženiu z Termotec. Doháranie nespálených častíc vďaka deflektoru, ktorý predĺžuje dráhu spalín, čím sa zvyšuje využitie energie a minimalizujú emisie. Štandardnou výbabou je príprava na externý prívod vzduchu s priemerom 125 mm. Regulácia výkonu jediným tiahlom, čo eliminuje nesprávne používanie. Dvojitý prívod vzduchu do spaľovacej komory – primárny vzduch je privádzaný pod rošt a sekundárny má za účinok čisté sklo. Po uzavretí primárneho prívodu vzduchu pomocou regulátora na krbovej vložke je sekundárny prívod stále aktívny. Vzduch do krbovej vložky je dodávaný aj cez špeciálne kanály na bokoch vložky a je rovnomerne rozložený na celé sklo, vďaka čomu ostáva čisté. BEZPEČNOSŤ NA NAJVYŠŠEJ ÚROVNI Dokonalá tesnosť vďaka pevným zvarom. Korpus a dvierka vyrobené z vysokokvalitnej ocele odolnej voči vysokým teplotám. Oceľové elementy rezané laserovo a ohýbané na ohýbačkách CNC. Žiaruvzdorné dvierka s keramickým sklom odolným voči teplotám až 660°C s certifikátom kvality a bezpečnosti. EKOLOGICKÉ SPAĽOVANIE Krbová vložka spĺňa kritéria Ekoprojektu a normy BImSchV 2, ktoré stanovujú maximálne emisie CO. JEDNODUCHÁ OBSLUHA Bezroštová krbová vložka – popol dohára v spaľovacej komore, čo v praxi zmanená, že drevo zhorí na jemný popol a je tak využité na maximum. Vzduchová clona medzi sklom a spaľovacou komorou udržuje sklo dlhšie čisté a odovzdáva tak do ppriestoru viac tepla. Možnosť ustavenia krbovej vložky aj na prípadných nerovnostiach vďaka nastaviteľným nožkám. LIFT-UP systém otvárania dvierok – výsuvné otváranie pre jednoduchšie prikladanie dreva a možnosť bočného otvárania pre pohodlné čistenie skla. Nastaviteľný, dvojdielny vývod spalín s možnosťou otáčania o 360°. MODERNÝ DIZAJN Dekoratívne sklo typu glass s čiernym okrajom, vďaka ktorému vyzerá krbová vložka moderne a elegantne a opticky zväčšuje pohľad na oheň. Záruka 5 rokov. Minimálna požadovaná veľkosť mriežky na výdaj vzduchu (cm2): ≥900 Minimálna požadovaná veľkosť mriežky na príjem vzduchu (cm2): ≥700 Hmotnosť 255 kg Nominálny výkon (kW)14 Výkonný rozsah (kW)6.5 – 17.0 Palivo Drevo Materiál Oceľ Externý prívod vzduchu Áno Popolník Nie Účinnosť (%)80 Emisie CO (13% O2 VOL. %)0,09 Max. dĺžka polien (mm)700 Dymovod Nastaviteľný Priemer dymovodu (mm)200 Teplota spalín (°C)245 Kolekcia NADIA Výrobca KRATKI Otváranie dvierok Výsuvné Presklenie Rohové – pravé









Recenze
Zatím zde nejsou žádné recenze.